3 camere in vendita a Udine


Pubblicato da
Logo agenzia
Immobiliare Cierre
+39 0432 204546
info@immobiliarecierre.it

3 camere

Udine (UD)
430.000 €
Descrizione

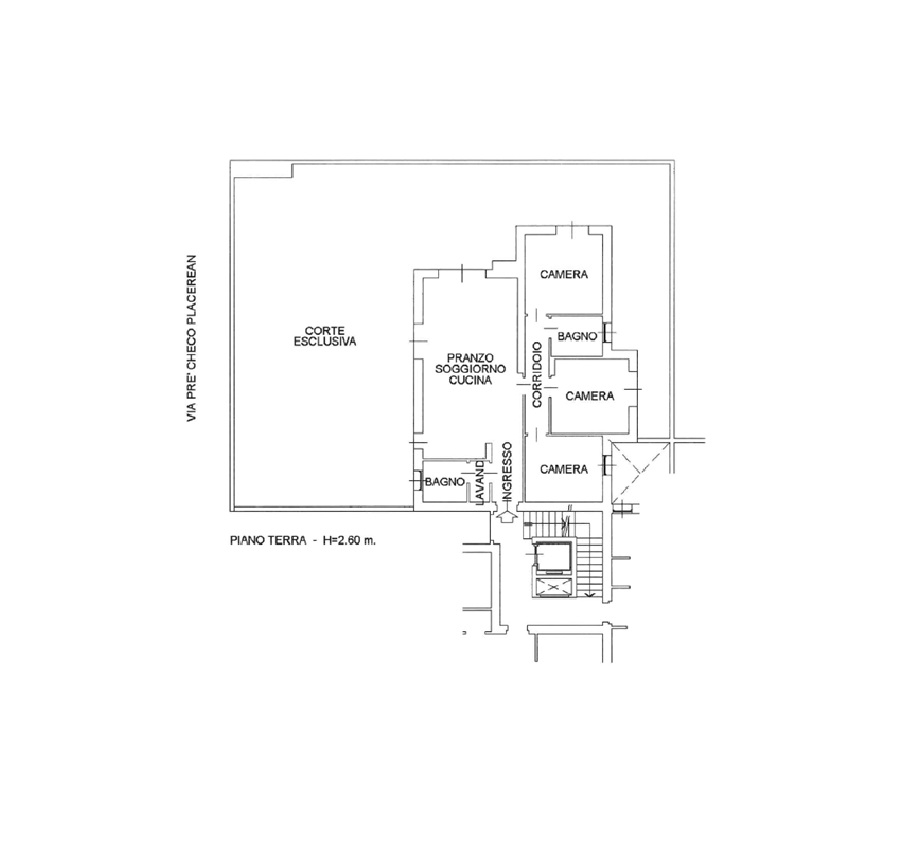
in contesto residenziale di nuova costruzione, proponiamo appartamento tricamere al piano terra di 120 mq, con ampio giardino privato di 250 mq e garage doppio.l'immobile si compone di: zona giorno ampia e  luminosa tre camere da letto due bagni finestrati garage doppio giardino di proprietà esclusiva comfort e tecnologia: riscaldamento e raffrescamento a pavimento ventilazione meccanica controllata classe energetica a4 ottimo isolamento termico e acustico possibilità di personalizzare finiture e spazi interni soluzione ideale per chi cerca indipendenza, comfort e uno spazio esterno da vivere.zona tranquilla e ben servita, perfetta per famiglie.disponibile da subito – primo ingressoprezzo € 430.000,00

Altre informazioni
  • Riferimento agenzia: CI1458
  • Camere: 3
  • Bagni: 2
  • Superficie: 120 Mq2
  • Anno : -
  • Orientamento : -
  • Stato al rogito : -
  • Spese condominiali : -
  • Stato immobile : nuovo
  • Numero piani :
  • Numero posti auto coperti : -
  • Numero posti auto scoperti : -
  • Numero posti auto garage : Doppio
  • Numero terrazze : -
  • Riscaldamento : autonomo
  • Tipo riscaldamento : -
  • Tipologia giardino : -
  • Superficie scoperto :-
  • Classe energetica :In definizione
  • IPE : - kWh/m2 anno
Torna su