Negozi uffici capannoni in vendita a Pordenone


Pubblicato da
Logo agenzia
Paludet & Partners - Real Estate
+39 0434 208080
info@paludet.it
Descrizione

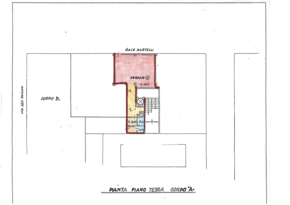
A pordenone in zona privilegiata tra il tribunale e il teatro verdi, in viale martelli, proponiamo in vendita un locale commerciale di 65 mq. Ca. Composto da un ampio spazio principale ideale per l'esposizione e la vendita, due ingressi che favoriscono l'accesso e la gestione dei clienti, due vetrine che offrono visibilità e luminosità, un pratico retrobottega aerato per lo stoccaggio ed un bagno di servizio. l'immobile è locato con contratto attivo da numerosi anni e quindi con clientela affiliata e proprio per questo e grazie alla posizione strategica rappresenta un investimento ideale!per maggiori informazioni e per fissare un appuntamento per visitare l'immobile non esitate contattarci.

Altre informazioni
  • Riferimento agenzia: NV25
  • Camere: -
  • Bagni: 1
  • Superficie: 65 Mq2
  • Anno : -
  • Orientamento : -
  • Stato al rogito : Occupato
  • Spese condominiali : -
  • Stato immobile : usato da riattare
  • Numero piani :
  • Numero posti auto coperti : -
  • Numero posti auto scoperti : -
  • Numero posti auto garage :
  • Numero terrazze : -
  • Riscaldamento : centralizzato
  • Tipo riscaldamento : -
  • Tipologia giardino : -
  • Superficie scoperto :-
  • Classe energetica :-
  • IPE : - kWh/m2 anno
Torna su