Negozi uffici capannoni in vendita a Udine


Pubblicato da
Logo agenzia
IMMOBILIARE IN UDINE
+39 0432 502100
info@immobiliareinudine.it

negozi uffici capannoni

Udine (UD) - Periferia
135.000 €
Descrizione

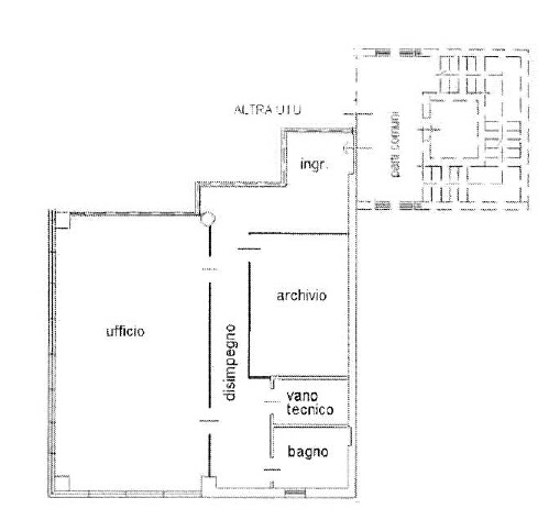
Udine nord: in torre direzionale, ufficio da mq. 105 con 2 ampi vani, termoautonomo, climatizzato, ampio parcheggio condominiale.Attualmente locato con contratto di anni 6+6, ideale per investimento a reddito.

Altre informazioni
  • Riferimento agenzia: L599
  • Camere: -
  • Bagni: 1
  • Superficie: 105 Mq2
  • Anno : 2002
  • Orientamento : -
  • Stato al rogito : Affittato
  • Spese condominiali : -
  • Stato immobile : recente
  • Numero piani :
  • Numero posti auto coperti : -
  • Numero posti auto scoperti : -
  • Numero posti auto garage :
  • Numero terrazze : -
  • Riscaldamento : autonomo
  • Tipo riscaldamento : -
  • Tipologia giardino : -
  • Superficie scoperto :-
  • Classe energetica :C
  • IPE : 347 kWh/m2 anno
Torna su